Skip to main content
Main navigation
Home
About Us
Design Approach
FAQs
Testimonials
Copyright Information
Contact Us
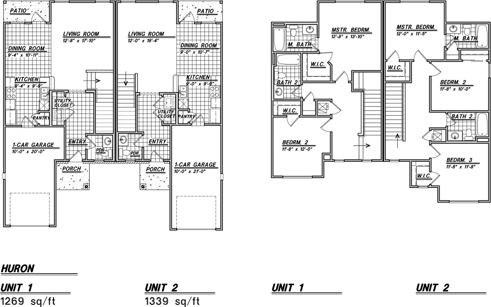
Duplex’s Homes
Second Floor
Huron
Charleston
Pagination
« First
First page
‹‹
Previous page
1
2